本文的关键要点
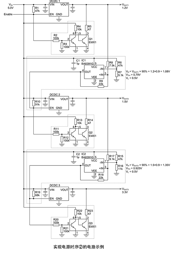
使用通用电源IC实现电源时序②的电路由DCDC IC×3、Power Good电路×2和放电电路×3组成。
在上上篇文章和上一篇文章中,已经介绍了使用通用电源IC实现电源时序规格②相关的电源导通时和关断时的时序工作。本文将介绍使用通用电源IC实现规格②的实际电路示例以及各种设置所需的常数计算。
电源时序规格②:实际的电路和常数计算示例
实现电源时序②的电路示例如下所示。三个系统的DCDC 1~3假定为开关稳压器或线性稳压器(LDO)。每个DCDC都有使能(EN)引脚,可以控制输出的开和关。
Power Good模块
有两个Power Good模块。在规格①中,Power Good功能是使用电压监控IC BD4142HFV实现的,但在规格②中,则由下图所示的同相迟滞比较器实现,IC则使用比较器IC BA8391G。
启动时的检测电压VH和关断时的检测电压VL之间设有较大的迟滞电压。这使得通过1个器件来检测启动时和关断时的电压并输出控制信号成为可能。
下面以上述电路示例中的VOUT1为例,计算每个常数。VOUT1为1.2V,IC1的PGOOD设置为在达到输出电压的90%时输出一个标志。启动时的检测电压VH为1.2V×0.9,即1.08V。关断时的检测电压VL设置为0.5V。这是即使在每个电源之间施加反向电压,寄生元件大概也不会导通的电压。
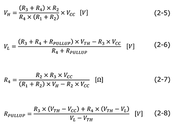
比较器的阈值电压VTH设置在VH和VL之间的中点,如下所示。该值可以通过公式2-1来计算。
另外,VTH也可以用公式2-2来表示,当为了求得R2而将公式2-2变形后,就成为公式2-3。
设R1为47kΩ,VCC由VIN提供所以是5V,R2根据以下公式变为8.8kΩ。从E24系列电阻阻值速查表中选择标称电阻值9.1kΩ。
R3选择与反相输入引脚(-IN)的阻抗相同的产品,以抵消输入偏置电流。根据公式2-4得出的值为7.6kΩ,从E24系列电阻阻值速查表中选择标称电阻值7.5kΩ。
计算同相迟滞比较器的VH和VL的常用计算公式为2-5和2-6。当这些公式被转换为计算R4和RPULLUP的公式时,就会变成公式2-7和2-8。
将前面求得的常数代入公式2-7和公式2-8,再求出剩余值。
对VOUT2的Power Good模块也按照相同的步骤进行常数计算。请参考本文开头给出的整体电路示例。
放电电路
在该电路中,分立结构的放电电路连接到每个DCDC。如下图所示,该电路由NPN晶体管和电阻组成。第一段的晶体管是简单的逆变器电路,第二段是集电极开路开关。第二段导通时,在DCDC关断时主要是释放输出电容器的残余电荷,使VOUT迅速下降。输出电压的下降时间根据与第二段晶体管的集电极串联的电阻(下图中的R4)值来调整。这部分与规格①相同。
